New Single-Family Residence

Washington, D.C.

2017

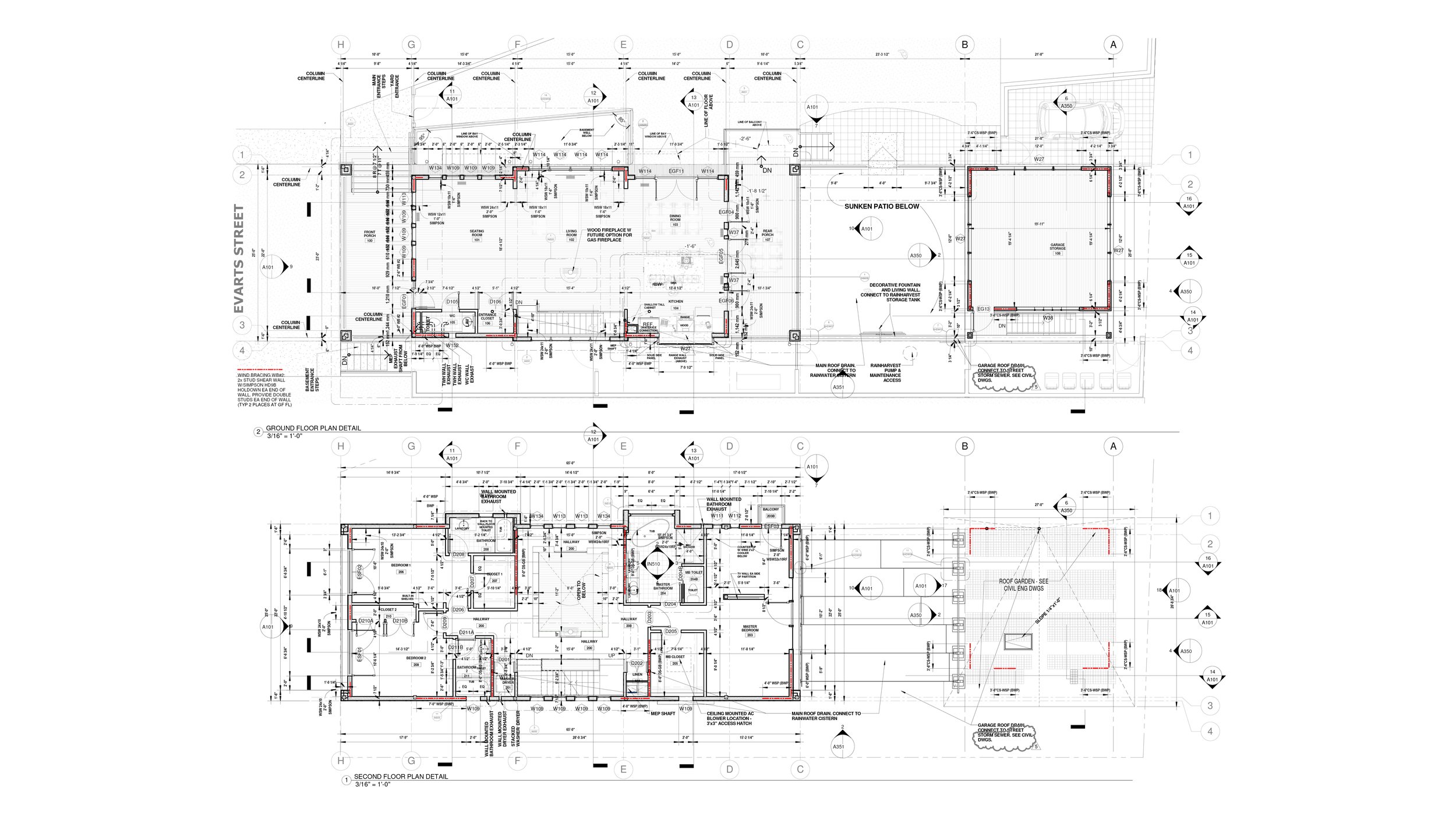
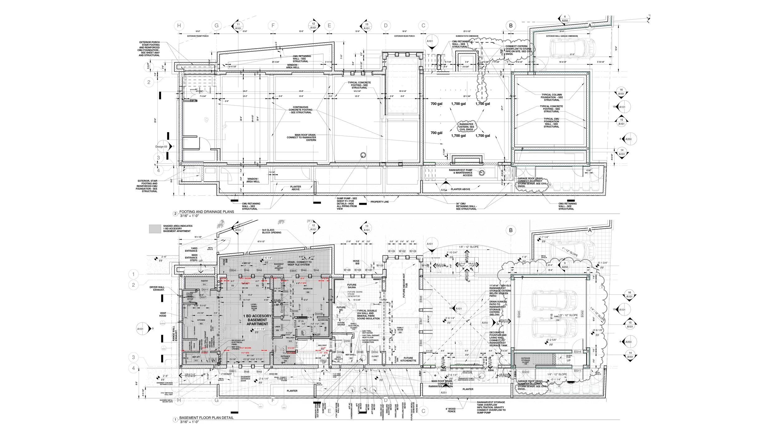
This unbuilt design for a single family residence in D.C. introduces a modern-design approach that speaks to the city’s vibrancy and bold architecture found in the national capital. A refined floor plan maximizes both the ground floor / basement areas through a detached garage and sunken patio, capped off by a spectacular rooftop terrace.