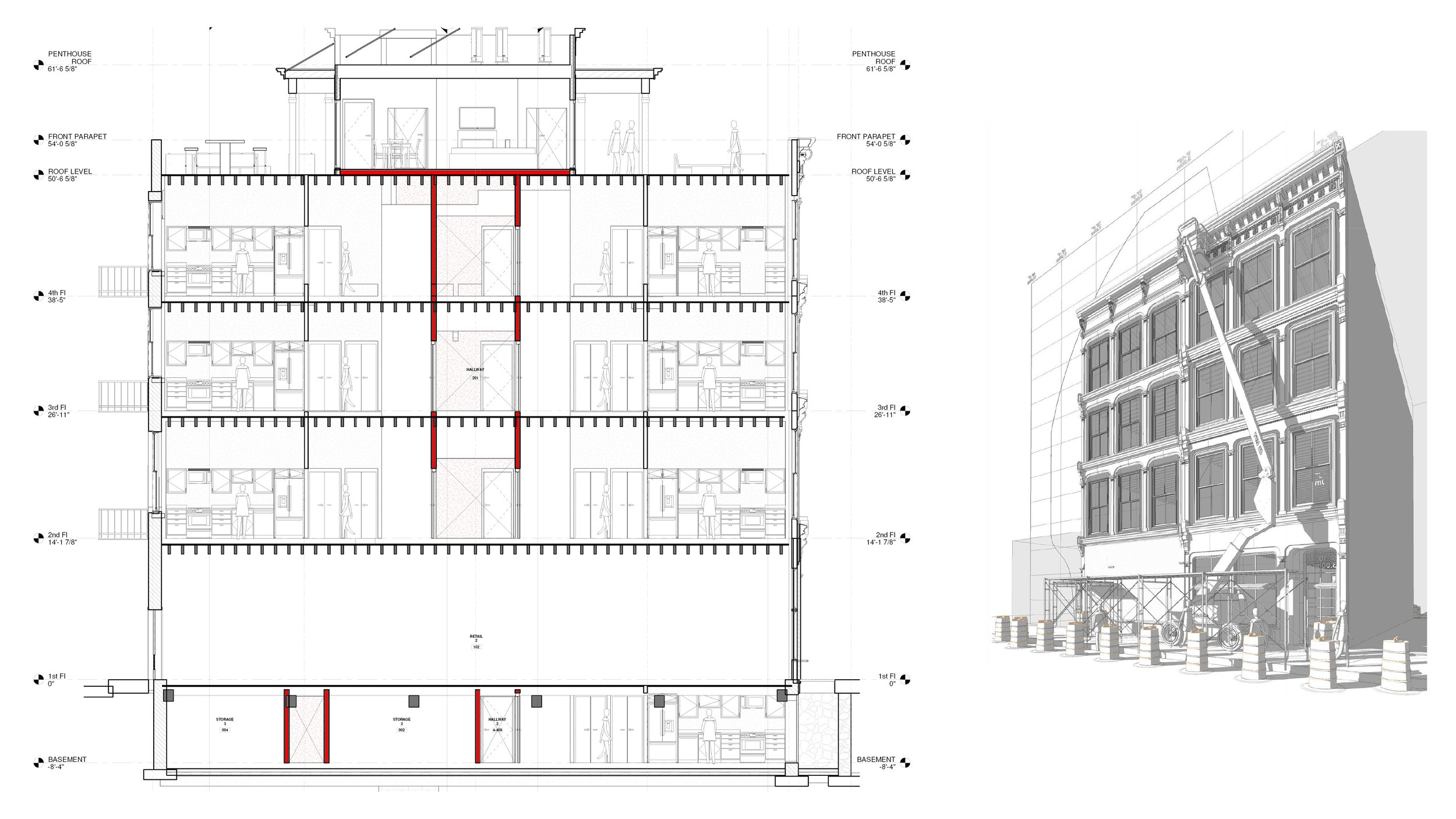
Historic Facade Restoration

Baltimore, Maryland

2020

A historic cast-iron facade in the heart of downtown Baltimore was in need of restoration, as one of the few remaining examples in the region. Also developed were plans to convert both buildings into residential units, working with the owners to bring much needed housing for the neighborhood.